Engineered Architectural Design _

Building Repurposing:
Adaptive Reuse_;
Building Renovation_;
Building Rebranding;

• Building Repurposing involves strategies for redesign of buildings where envelopes and structure are considered as significant resources to be generally maintained and therefore, where redesign and reconstruction of interiors become the focus. This problem type involves "program packing" inside a set fixed perimeter, therefore is less spatial in nature than architecture might otherwise be considered.

For multifamily, this strategy first presented itself as loft design on the north side of Chicago in the early 1990's where existing industrial neighborhoods were adjacent to lowrise residential.

Shown on this page are a mix of multifamily, educational and institutional repurposing designs involving work at a range of scales from building to urban and suburban land planning. This strategy offers opportunities to rebrand buildings and settings while maintaining historical infrastructure..

I__Building Repurpose_Reuse_
Lowrise + Midrise Urban_


      
      

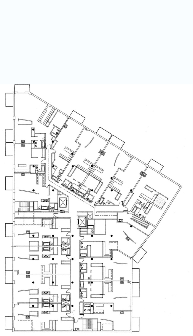
Midrise Urban Loft Condominiums. 120,000 gsf. 6 Stories Multifamily + Parking + Commercial. Chicago, Archer + Canal. w/ Philip R. Cohen AIA Architect.



      
      

Lowrise Urban Loft Condominiums. 35,000 gsf. 4 Stories Multifamily + Parking. Chicago. Oakley, Erie. w/ Philip R. Cohen AIA Architect.





II__Building Repurpose_Reuse_
Educational_Assembly + Media Spaces


      
>
      

Building Redesigns_
Child School for the Arts, Roosevelt Island, NYC, Manhattan. Building Redesign for Children's Arts Center. w/ Darius Toraby Architect AIA; Campus Media Center Design, Lake Forest College, Lake Forest, IL.



III__Building Repurpose_Reuse_
Educational_ Dormitories_




      

Building Redesign + Rebranding_Modern to Traditional. South Campus Dormitory Redesign/Expansion. Lake Forest College, Lake Forest, IL. Additional Floor, Hip Roofs, Site Planning.

Professional Focus

Projects shown represent 6 areas of Professional Focus:
Prefab (Volumetric, Panels, Steel Structural), Building Repurposing; HyperScale incl. Corporate Scale Projects w/ Large Budgets; Residential Interior Design; Professional Tools, Global Comparative Models.

News

More News

Testimonials

“I have been in contact with Steve continuously since that time and have found him to be a most competent, ethical and talented architect.“

— Thomas D. Fromm AIA, ACHA Health + Science Practice Leader Skidmore Owings Merrill LLP, Chicago, IL

— From reference/recommendation letter to NYS Department of Education Re NYS Architectural License Application

“to describe Steve in few words is to say he is a Solution Architect. His knowledge and ability to resolve issues are exemplary. Great leadership skill and ability to drive the project to successful conclusion is one of is many talents. Steve is a team player and a great pleasure to work with “

—Margarita Ambramov Business Analyst New York City Housing Authority, currently; Chief Compliance + Procurement Officer for IBTS, 2014-19

—Re Position as Managing Senior Architect, New York City Office for IBTS, incl. Engineering + Environmental Program Manager, Institute for Building Technology and Safety, Sterling VA

Architecture

Recent + Upcoming News.

Learn more

Planning

Recent + Upcoming News.

Learn more

Engineering

Recent + Upcoming News.

Learn more