Engineered Architectural Design _

Red Steel Volumetric Stacked Asemblies;
Cold Steel Framed Enclosures | Midrise;
Engineered Wood Framed Enclosures | Lowrise;

• Volumetric involves enclosures which can operate as structural systems, extending up to 40 stories using steel framing inside the volumetric units, and up to 5 stories with wood framing inside the volumetric units.

Both are capable of delivering solutions at scale for multifamily, commercial and hospitality.

The design of Volumetric emanates takes as its basis longer and deeper enclosures having fenestration at the end transverse to the axis of the volume. As a result it has maximal stiffness for the enclosed volume and can go high as mid rise assembly, assuming tolerances can be controlled. QAQC both in the factory and in the field is a central consideration in this delivery model.

I__Engineered Volumetric Design_
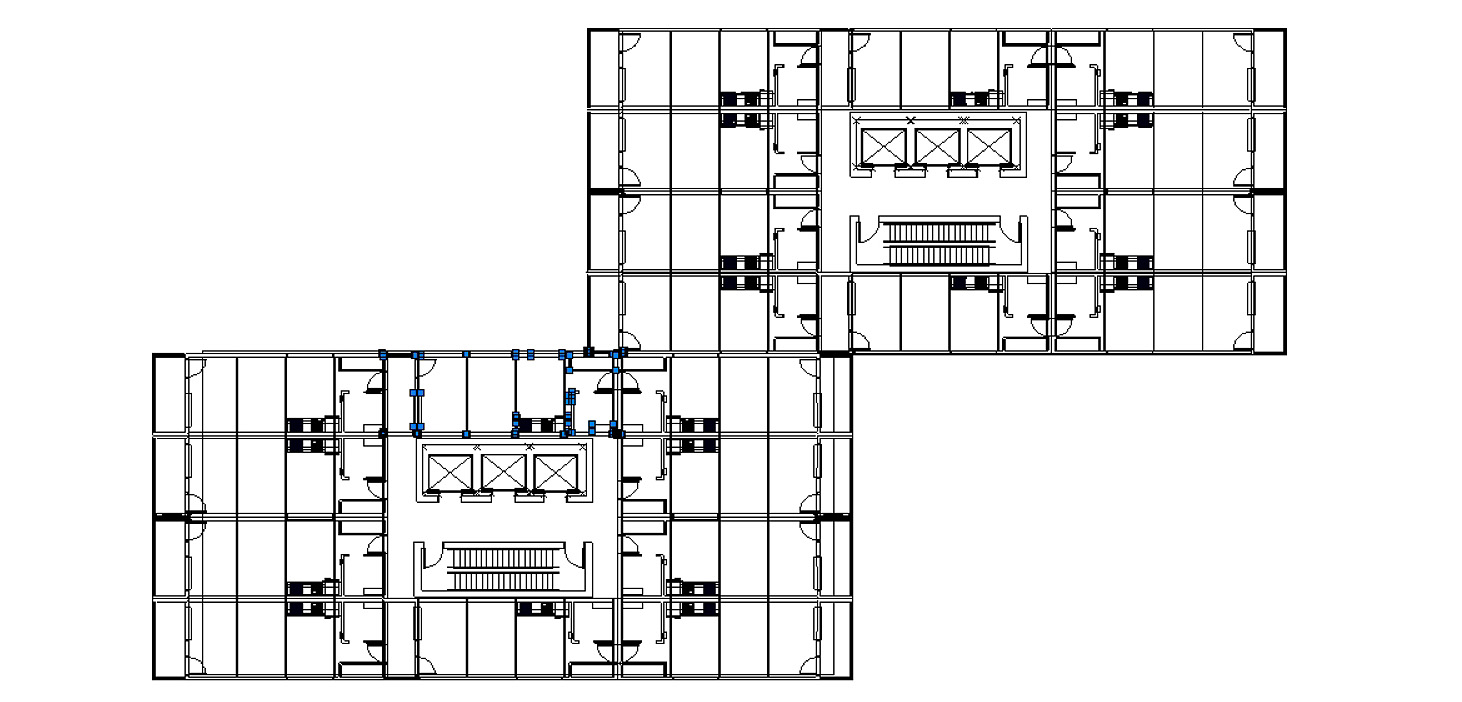
Midrise Braced Core _Steel Framed Enclosures _ 30+ Stories


            


            





30+ Stories; Twinned tower assemblies, Steel framed enclosures (Design Approach per HTA Architects UK, Croydon). 3750 net sf/floor; 112,500 net sf/tower; 225,000 net sf total livable. Studio, 1 BR, 2 BR




II__Engineered Volumetric Design_
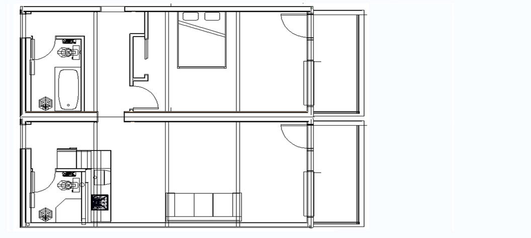
Lowrise Corridor Arranged _Cold Rolled Steel / Wood Framed Enclosures_5 Stories Wood, 8 Stories Cold Steel_ Dormitories, Apartments, Hospitality


            



            



            


            




Corridor Arranged Multifamily. To 8 Stories; Cold Steel, To 5 Stories Engineered Wood. Hospitality, Dormitories, Multifamily. Floor Size per Code Exit Distances. Studio, 1 BR, 2 BR





III__Engineered Volumetric Design_
Enclosure Modules_Tranversely Oriented Fenestration_Studio, 1 Bed, 2 Bed_





Volumetric Systems Incorporated_VOLUMETRIC SYSTEM DELIVERY

  • Volumetric Systems_Fabricator Web Site


  • Professional Focus

    Projects shown represent 6 areas of Professional Focus:
    Prefab (Volumetric, Panels, Steel Structural), Building Repurposing; HyperScale incl. Corporate Scale Projects w/ Large Budgets; Residential Interior Design; Professional Tools, Global Comparative Models.

    News

    More News

    Testimonials

    “I have been in contact with Steve continuously since that time and have found him to be a most competent, ethical and talented architect.“

    — Thomas D. Fromm AIA, ACHA Health + Science Practice Leader Skidmore Owings Merrill LLP, Chicago, IL

    — From reference/recommendation letter to NYS Department of Education Re NYS Architectural License Application

    “to describe Steve in few words is to say he is a Solution Architect. His knowledge and ability to resolve issues are exemplary. Great leadership skill and ability to drive the project to successful conclusion is one of is many talents. Steve is a team player and a great pleasure to work with “

    —Margarita Ambramov Business Analyst New York City Housing Authority, currently; Chief Compliance + Procurement Officer for IBTS, 2014-19

    —Re Position as Managing Senior Architect, New York City Office for IBTS, incl. Engineering + Environmental Program Manager, Institute for Building Technology and Safety, Sterling VA

    Architecture

    Recent + Upcoming News.

    Learn more

    Planning

    Recent + Upcoming News.

    Learn more

    Engineering

    Recent + Upcoming News.

    Learn more