• Panel involves components which are assembled onsite to create enclosures, partitions or surfaces. Panel assemblies can be set within either conventional structural systems or inside volumetric enclosures. Panel is the current "go to" means for developers delivering solutions at smaller scale for multifamily, commercial and hopitality.
It relevance arises from use in wider and shallower enclosures which are fenestrated along their length, as a detached American suburban house. As a result, Panel as a system delivers less stiffness than Volumetric and therefore is more suitable to lowrise construction, either wood or cold rolled steel.
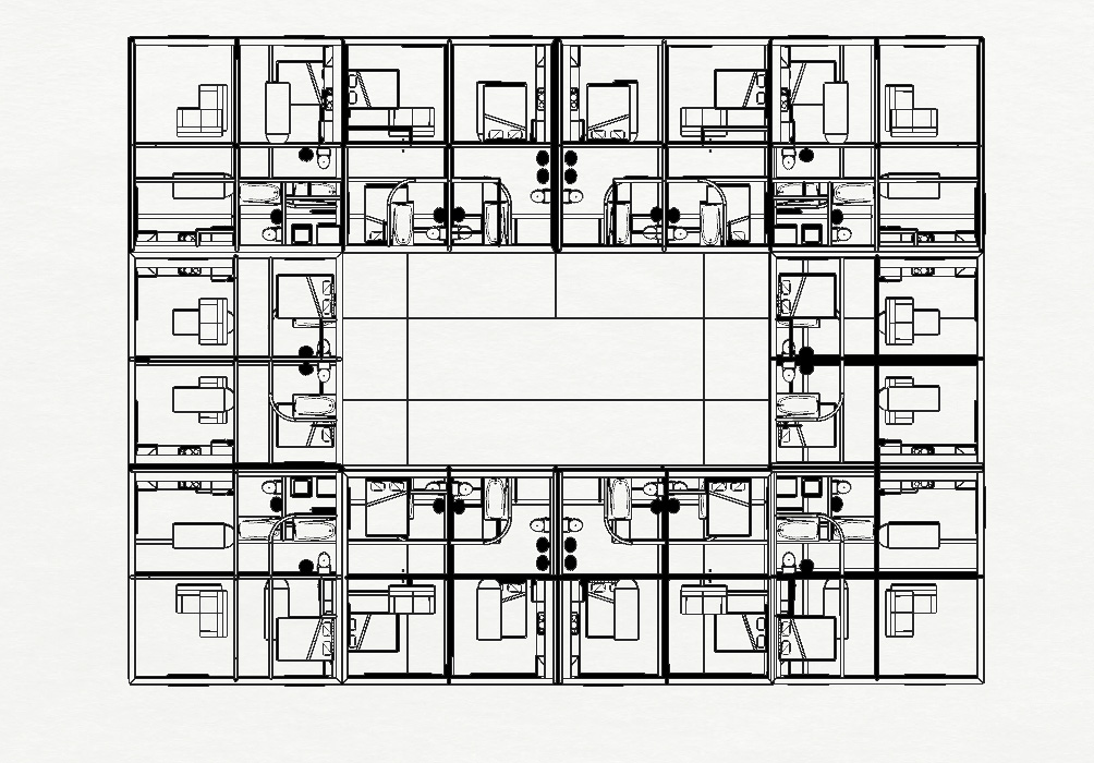
All panel designs premised, incl.braced core, corridor, townhome flats, and house, based on a standard 1250 gsf 3 bed residential house plan. All units demisable from full 3br to 1/2 br to studio to micro units, for all scales of assembly.
Engineered Steel Panel w/ Cold Formed Steel. Economic Low and Midrise MultiFamily, to 12 Stories. Concrete Block or Steel Framed Elevator/Stair Core.
One, Two, Three Bed; 6,000 net sf living area per floor plate with up to 5 1,200 sf Three Bedroom Units per Floor, or Various Combinations of One & Two Bedrooms per Floor.
Full Height Glass in contrast to Volumetric Delivery.
Multifamily, Hospitality, Dormitories
|
Shown Above: 100' x 75' Standard Braced Residential Blocks Joined. Delivers Optimal Fire Protection at Scale for Large Scale Urban Sites. Significantly More Flexible in Plan Form and Height over Conventional Wood Frame either Conventional or Volumetric. Extensive and Flexibly Configured Floor Plates up to 12 Stories.
|
Shown Below Standard Basic Volume 100' x 75' Gross Floor Area, 6,000 Net Livable 5 to 8 DU Per Floor. Can Extend with Cold Form Steel to 10-12 Stories. Optional Parking or Commercial at Grade.
An Economic Alternative to Costly Conventional NYC 6 Story Traditional Masonry Lowrise Apartment Construction.
 |
 |
Twinned Low or Midrise Blocks. Allows Shared Commons for Senior Residential Living or Dormitories.
|
Various Flexible Unit Planning Options, with up to 17' Transverse Spans. All Units with Custom Kitchen and Bathroom Pods.
I__Engineered Panel Design_ Lowrise | Midrise Braced Core _To 12 Stories; Cold Steel, To 5 Stories w/ Engineered Wood. Hospitality, Dormitories, Multifamily.
Shown Below: Senior Active Community Living Low | Midrise Apartments / Condominiums. Based on Domestic Residential 1250 gsf du Plan. Braced Core, Dedicated Parking. Poured Concrete Deck. Soundproof. Buffalo Grove, IL 2023-4.
|
|
|
II__Engineered Panel Design _
Lowrise Corridor Arranged_Gated Community. To 12 Stories; Cold Steel, To 5 Stories Engineered Wood.
Shown Below: Senior Active Gated Community Living Lowrise Apartments / Condominiums. Based on Domestic Residential 1250 gsf du Plan. Plans from Studio, to 1,2 & 3 BR. Corner Elevator and Stair Cores, Dedicated Parking. Poured Concrete Deck. Soundproof. Arlington Heights IL, Lake Cook Road, 2022-23.
Originally Developed in response to Chicago Bears Stadium proposed relocation to Arlington Heights from Chicago Soldier Field. Hospitality, Dormitories, Multifamily.
|
|
|
|
|
|
III__Engineered Cold Form Steel Panel Design.
Lowrise Braced Core_Urban Design_4-7 Stories,
Shown Below: Traditional Apartment or Condominium Buildings. Dwelling Units range from 625 gsf One BR to 1250 gsf Three BR. Poured Deck. Soundproof. Outbord Kitchens + Living. Bay Ridge, Fort Hamilton. Southern Brooklyn, NYC. 2023-24.
Flexible Urban Design. 4-6 Story Braced Core_Attached or Free Standing Residential Blocks. Dedicated Parking. Full Height Glass.
|
IV__Engineered Panel Design_Basic Urban or Suburban Detached/Attached_Walkups + Single Family_SIPs, Cold Rolled Steel. Plans can be twinned or elled w/ dividing Fire Separation Walls. To 4 Stories.
|
V__Engineered Panel Design_ Standard Modular Residential Enclosure Modules / Lengthwise Oriented._Suitable for Houses or for Attached Dwelling Units within Larger MultiFamily (Condominiums and Apartments)
Numerous Floor Plan Options for MultiFamily. Buildings To 12 Stories in Cold Form Steel.
Studio 312 gsf; 1 Bed 625 gsf; 2 Bed 937 gsf; 3 bed 1250 gsf;All DU areas NYC Code Conforming.
Professional Focus
Projects shown represent 6 areas of Professional Focus: Prefab (Volumetric, Panels, Steel Structural), Building Repurposing; HyperScale incl. Corporate Scale Projects w/ Large Budgets; Residential Interior Design; Professional Tools, Global Comparative Models.
Residential Lowrise | Midrise, New York
Residential PUD, Brooklyn, NY
Industial Building, HRYV, Bronx, NY
Archer Canal Lofts, Chicago
Senior Modular Communities, Buffalo Grove, IL
Stagger Truss Highrise, New York
Micro Housing to 6 Stories | Chicago, New York
Contempoary_Traditional_Loft | Chicago, New York
AIM Urban Landscape Park | Beijing, China
Testimonials
“I have been in contact with Steve continuously since that time and have found him to be a most competent, ethical and talented architect.“
— Thomas D. Fromm AIA, ACHA
Health + Science Practice Leader
Skidmore Owings Merrill LLP, Chicago, IL
— From reference/recommendation letter to
NYS Department of Education
Re NYS Architectural License Application
“to describe Steve in few words is to say he is a Solution Architect. His knowledge and ability to resolve issues are exemplary. Great leadership skill and ability to drive the project to successful conclusion is one of is many talents.
Steve is a team player and a great pleasure to work with “
—Margarita Ambramov
Business Analyst New York City Housing Authority, currently;
Chief Compliance + Procurement Officer for IBTS, 2014-19
—Re Position as Managing Senior Architect, New York City Office for IBTS, incl. Engineering + Environmental Program Manager,
Institute for Building Technology and Safety, Sterling VA
|